|
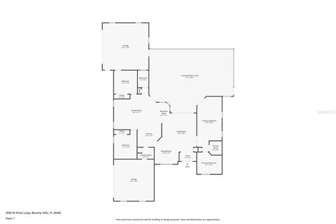
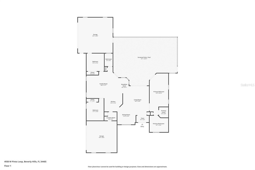
One or more photo(s) has been virtually staged. Set in the sought-after Pine Ridge community on a serene 1.34-acre wooded lot, this 3-bedroom, 2-bath home welcomes you with a long, natural driveway that extends into a side circular drive leading to split garages at both the front and back of the property, offering a total of four garage spaces and an elegant sense of arrival surrounded by mature trees and lush natural landscaping. The front porch invites you in with textured flooring, tall columns, arched windows, and a smooth light-toned ceiling framing the double-door entry that opens into a bright foyer with tile flooring and direct views of the shimmering pool through wide sliding windows. The dining and family room combination features wood-look luxury vinyl flooring, an open layout, and large windows that fill the space with daylight, with a dining area and a breakfast nook surrounded by windows overlooking the pool and connected to the kitchen, which includes tile flooring, white cabinetry, stainless steel appliances, a breakfast bar, a dual sink, and an airy pass-through that opens to the living area. The primary bedroom feels like a peaceful retreat with wood-look flooring, abundant natural light from large windows, and a sliding glass door leading directly to the pool area, while the ensuite bathroom offers dual vanities, a walk-in glass shower, and a soaking tub beneath a stunning arched window. Bedrooms two and three feature the same warm flooring, spacious walk-in closets, and access to a shared bathroom with a tub-and-shower combination. Both bathrooms have a linen closet. The front door has a coat closet. Outside, the screened pool area becomes an everyday escape with textured flooring, wide sliding windows connecting the interior to the outdoors, and tranquil views of the tree-lined backyard with natural ground cover. A walking trail behind the back yard offers a nature walk anytime. Nearby attractions include the Withlacoochee State Trail, a popular paved path ideal for biking, jogging, and nature walks; the wildlife-rich waters of Crystal River, perfect for boating and exploring Florida's natural springs; and Beverly Hills Community Park, where open green spaces, walking paths, and recreational amenities offer outdoor enjoyment just minutes from home.
| DAYS ON MARKET | 30 | LAST UPDATED | 12/4/2025 |
|---|---|---|---|
| TRACT | PINE RIDGE UNIT 01 | YEAR BUILT | 2002 |
| COMMUNITY | 34465 - Beverly Hills | GARAGE SPACES | 4.0 |
| COUNTY | Citrus | STATUS | Active |
| PROPERTY TYPE(S) | Single Family |
| Elementary School | Central Ridge Elementary School |
|---|---|
| Jr. High School | Crystal River Middle School |
| High School | Crystal River High School |
| ADDITIONAL DETAILS | |
| AIR | Central Air |
|---|---|
| AIR CONDITIONING | Yes |
| APPLIANCES | Dishwasher, Microwave, Range, Refrigerator |
| AREA | 34465 - Beverly Hills |
| CONSTRUCTION | Block, Concrete, Stucco |
| EXTERIOR | Rain Gutters |
| GARAGE | Yes |
| HEAT | Central, Electric |
| HOA DUES | 11 |
| INTERIOR | Eat-in Kitchen, High Ceilings, Stone Counters, Walk-In Closet(s) |
| LOT | 1.34 acre(s) |
| LOT DESCRIPTION | Irregular Lot, Landscaped, Level, Paved, Private, Wooded |
| PARKING | Circular Driveway, Garage Door Opener, Garage Faces Side, Off Street, Garage, Workshop in Garage, Attached |
| POOL | Yes |
| POOL DESCRIPTION | In Ground, Screen Enclosure, Private |
| SEWER | Septic Tank |
| STORIES | 1 |
| STYLE | Florida |
| SUBDIVISION | PINE RIDGE UNIT 01 |
| TAXES | 2765 |
| UTILITIES | Cable Available, Electricity Available, Phone Available, Water Available |
| VIEW | Yes |
| VIEW DESCRIPTION | Trees/Woods |
| WATER | Public |
MORTGAGE CALCULATOR
TOTAL MONTHLY PAYMENT
0
P
I
*Estimate only
| SATELLITE VIEW |
| / | |
We respect your online privacy and will never spam you. By submitting this form with your telephone number
you are consenting for Greg
Lord to contact you even if your name is on a Federal or State
"Do not call List".
Listing provided by Ross Hardy, RE/MAX MARKETING SPECIALISTS, 352-686-0540
The information contained herein has been provided by My Florida Regional MLS DBA Stellar MLS. IDX information is provided exclusively for consumers' personal, non-commercial use, that it may not be used for any purpose other than to identify prospective properties consumers may be interested in purchasing, and that the data is deemed reliable but is not guaranteed accurate by the MLS. Listings last updated 1/2/26 1:56 PM PST.
This IDX solution is (c) Diverse Solutions 2026.