|
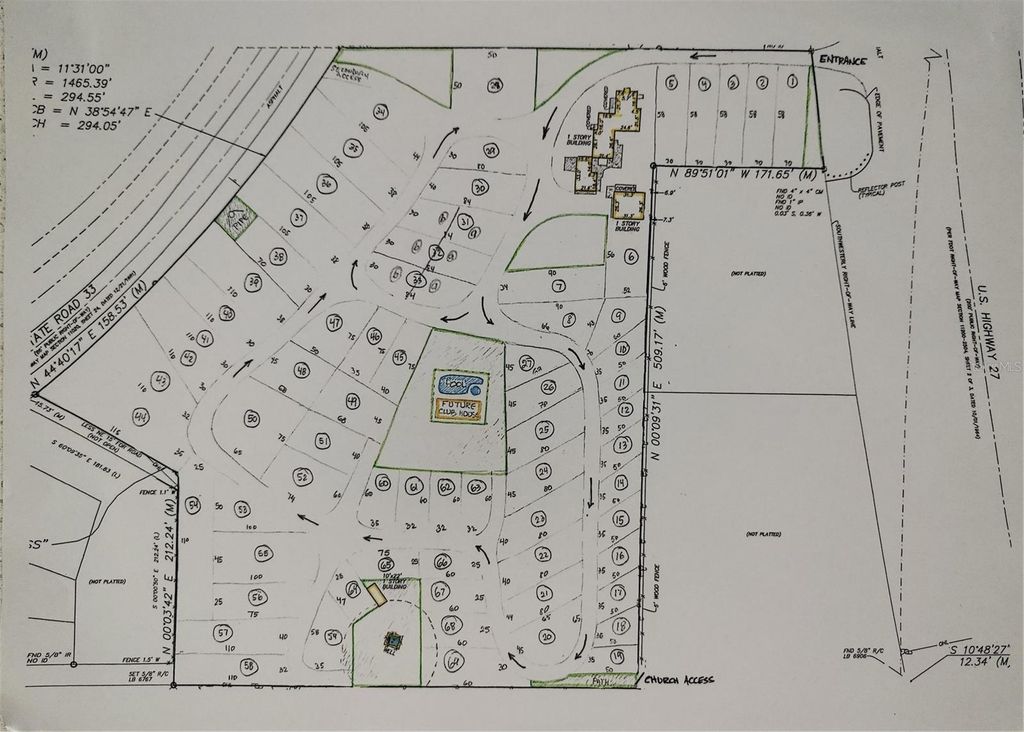
Under contract-accepting backup offers. 41 Unit Mobile Home / RV Park. Gated, 55+, Mix of Park Owned Mobiles, Tenant Owned Mobiles, Investor owned Mobiles, Block Apartments, Office and Block Storage shed. Capability of being 69 Pads. Currently Well and Septic but City Water and sewer are at the curb! Park Owned units refurbished! All have minisplits, solid countertops, etc. On SIte Manager wants to stay! Laundry facilities, Canopied trees, Fenced Park, Dual Entrances, Waiting list on RV spots. (additoional RV spots need to be developed). NOI $230,000. Number of Lots 41 + 1 House (or 2 apartments) Mobile Homes 28 POH - Mobile Homes 13, TOH - Mobile Homes 15, Recreational Vehicles 13, Apartments (House) 2, Owner's RV 1. There are 5 units for sale within the park. Fully renovated and rented. $200k for all 5 units. (lot rent 500.00 month).
| DAYS ON MARKET | 577 | LAST UPDATED | 1/15/2026 |
|---|---|---|---|
| YEAR BUILT | 1952 | COMMUNITY | 34748 - Leesburg |
| COUNTY | Lake | STATUS | Pending |
| PROPERTY TYPE(S) | Commercial |
| PRICE HISTORY | |
| Prior to Apr 15, '25 | $3,000,000 |
|---|---|
| Apr 15, '25 - Aug 12, '25 | $2,800,000 |
| Aug 12, '25 - Dec 26, '25 | $2,600,000 |
| Dec 26, '25 - Today | $2,500,000 |
| ADDITIONAL DETAILS | |
| AIR | Wall/Window Unit(s) |
|---|---|
| AIR CONDITIONING | Yes |
| AREA | 34748 - Leesburg |
| CONSTRUCTION | Metal Siding |
| LOT | 6.81 acre(s) |
| STORIES | 1 |
| TAXES | 22157.19 |
MORTGAGE CALCULATOR
TOTAL MONTHLY PAYMENT
0
P
I
*Estimate only
| SATELLITE VIEW |
| / | |
We respect your online privacy and will never spam you. By submitting this form with your telephone number
you are consenting for Greg
Lord to contact you even if your name is on a Federal or State
"Do not call List".
Listing provided by Mitch Feinsod, CARDINAL ROW REAL ESTATE, 386-873-7033
The information contained herein has been provided by My Florida Regional MLS DBA Stellar MLS. IDX information is provided exclusively for consumers' personal, non-commercial use, that it may not be used for any purpose other than to identify prospective properties consumers may be interested in purchasing, and that the data is deemed reliable but is not guaranteed accurate by the MLS. Listings last updated 3/4/26 6:48 PM PST.
This IDX solution is (c) Diverse Solutions 2026.