|
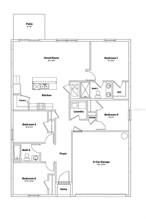
Under Construction. This all concrete block constructed, one-story home optimizes living space, featuring an open-concept kitchen overlooking the great room and outdoor patio. The well-appointed kitchen comes with all stainless-steel appliances, including a built-in dishwasher, range, and microwave. Bedroom 1 is located at the rear of the home for privacy and features an ensuite bathroom and walk-in closet near the bathroom. Two additional bedrooms at the front of the home are separated by the second bathroom. The third bedroom is located across the hallway near the laundry room. Pictures, photographs, colors, features, and sizes are for illustration purposes only and will vary from the homes as built. Home and community information including pricing, included features, terms, availability and amenities are subject to change and prior sale at any time without notice or obligation. CRC057592.
| DAYS ON MARKET | 1 | LAST UPDATED | 4/2/2026 |
|---|---|---|---|
| TRACT | MCGINLEY LANDING | YEAR BUILT | 2026 |
| COMMUNITY | 34473 - Ocala | GARAGE SPACES | 2.0 |
| COUNTY | Marion | STATUS | Active |
| PROPERTY TYPE(S) | Single Family |
| Elementary School | Marion Oaks Elementary School |
|---|---|
| Jr. High School | Horizon Academy/Mar Oaks |
| High School | West Port High School |
| ADDITIONAL DETAILS | |
| AIR | Central Air |
|---|---|
| AIR CONDITIONING | Yes |
| APPLIANCES | Dishwasher, Microwave, Range |
| AREA | 34473 - Ocala |
| CONSTRUCTION | Block |
| GARAGE | Yes |
| HEAT | Electric, Heat Pump |
| HOA DUES | 70 |
| INTERIOR | Open Floorplan |
| LOT | 5663 sq ft |
| PARKING | Attached |
| SEWER | Public Sewer |
| STORIES | 1 |
| SUBDIVISION | MCGINLEY LANDING |
| UTILITIES | Other |
| WATER | Public |
MORTGAGE CALCULATOR
TOTAL MONTHLY PAYMENT
0
P
I
*Estimate only
| SATELLITE VIEW |
| / | |
We respect your online privacy and will never spam you. By submitting this form with your telephone number
you are consenting for Greg
Lord to contact you even if your name is on a Federal or State
"Do not call List".
Listing provided by Jessica Cruz, DR HORTON REALTY OF WEST CENTRAL FLORIDA, 352-558-6840
The information contained herein has been provided by My Florida Regional MLS DBA Stellar MLS. IDX information is provided exclusively for consumers' personal, non-commercial use, that it may not be used for any purpose other than to identify prospective properties consumers may be interested in purchasing, and that the data is deemed reliable but is not guaranteed accurate by the MLS. Listings last updated 4/3/26 4:11 AM PDT.
This IDX solution is (c) Diverse Solutions 2026.