|
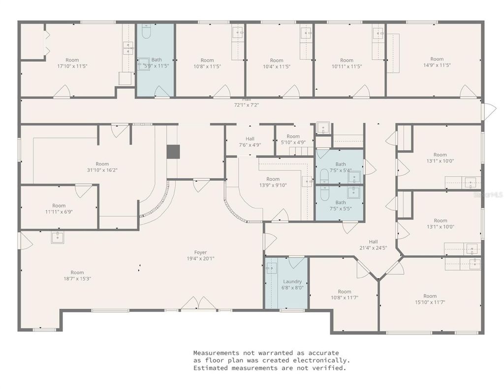
Ideal Medical office with very large Waiting Room. 3596 sf Building in popular Deerwood Office Park convenient to hospitals on SE 17th Street. 6-7 Exam Rooms. 2 Private offices. Large receiption area for check in and check out. Laboratory Room, janitorial Room , 3 restrooms, IT Electronic Room. Single tenant building. Very nice looking place. Masonry Brick Building. So close to hospitals and well known office park. Ideal for Physician or Medical related use. Sinks in and counters in Exam rooms. Can be seen on short notice . Available for $5000 / per month year 1, $5,500/month gross year 2, $6,000/month gross year 3. See why Deerwood office park is som popular with physicians and medical related businesses by scheduling your appointment today!
| DAYS ON MARKET | 58 | LAST UPDATED | 3/31/2026 |
|---|---|---|---|
| TRACT | DEERWOOD PROFESSIONAL CENTER | YEAR BUILT | 2004 |
| COMMUNITY | 34471 - Ocala | COUNTY | Marion |
| STATUS | Active | PROPERTY TYPE(S) | Commercial |
| PRICE HISTORY | |
| Prior to Mar 31, '26 | $68,324 |
|---|---|
| Mar 31, '26 - Today | $60,000 |
| ADDITIONAL DETAILS | |
| AIR | Central Air |
|---|---|
| AIR CONDITIONING | Yes |
| AREA | 34471 - Ocala |
| CONSTRUCTION | Block |
| HEAT | Central, Heat Pump |
| INTERIOR | Bathrooms, Waiting Room |
| LOT | 4356 sq ft |
| LOT DIMENSIONS | 50x90 |
| PARKING | Common |
| SEWER | Public Sewer |
| STORIES | 1 |
| SUBDIVISION | DEERWOOD PROFESSIONAL CENTER |
| TAXES | 14377.21 |
| UTILITIES | Electricity Available, Phone Available, Underground Utilities, Water Connected |
| WATER | Public |
MORTGAGE CALCULATOR
TOTAL MONTHLY PAYMENT
0
P
I
*Estimate only
| SATELLITE VIEW |
| / | |
We respect your online privacy and will never spam you. By submitting this form with your telephone number
you are consenting for Greg
Lord to contact you even if your name is on a Federal or State
"Do not call List".
Listing provided by Lori Busch, BUSCH REALTY, 352-690-1909
The information contained herein has been provided by My Florida Regional MLS DBA Stellar MLS. IDX information is provided exclusively for consumers' personal, non-commercial use, that it may not be used for any purpose other than to identify prospective properties consumers may be interested in purchasing, and that the data is deemed reliable but is not guaranteed accurate by the MLS. Listings last updated 4/3/26 11:34 AM PDT.
This IDX solution is (c) Diverse Solutions 2026.