|
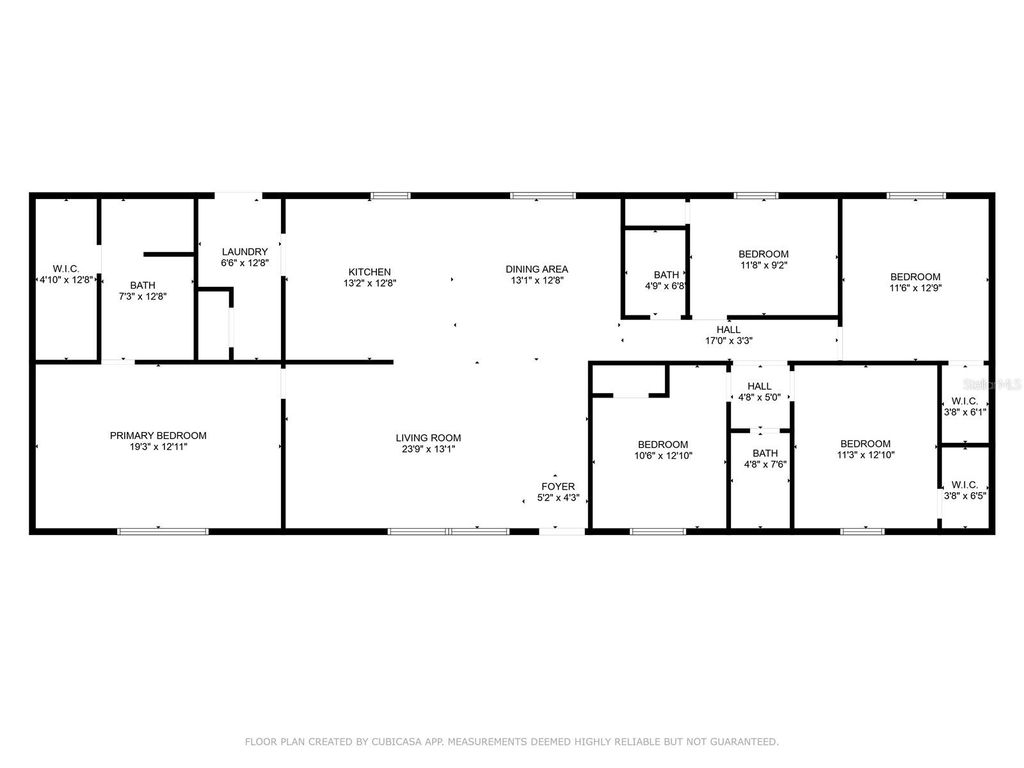
Experience a rare find with this almost new, 2022, spacious 5-bedroom, 3 full bath home on just under 5 acres (mol)! This property offers plenty of land for horses, livestock, or chickens. With over 2000 square feet, this home features luxurious vinyl flooring throughout, an open split plan, and a large kitchen with a separate dining area. All the bedrooms come with walk-in closets, and the master bedroom is en-suite with extra space for a cozy seating area. The home also boasts a brand new architectural shingle roof for added durability and style. The outside is equally impressive, starting with the 36 x 48 Pole Barn that can fit two RVs, full-size trucks, and more! This area is equipped with electric RV hookups and dump station, ready for you to bring all the toys. Enjoy quiet evenings on the back deck with your beverage of choice or splash around in the pool surrounded by nature. The property has been cleared just enough to enjoy the view while also giving you a sense of solitude. For those who work remotely, the home includes Starlink internet hardware, providing the fastest internet service available. The home is wired with high-speed network capabilities and includes interior and exterior security. Experience country living at its finest, yet only 30 minutes to Ocala and 20 minutes to Inverness. It?s a short drive to restaurants, dining, medical facilities, lakes, rivers, and more!
| DAYS ON MARKET | 8 | LAST UPDATED | 12/26/2025 |
|---|---|---|---|
| TRACT | RIVER OAKS UNREC | YEAR BUILT | 2022 |
| COMMUNITY | 34442 - Hernando | COUNTY | Citrus |
| STATUS | Active | PROPERTY TYPE(S) | Mobile/Manufactured |
| ADDITIONAL DETAILS | |
| AIR | Central Air |
|---|---|
| AIR CONDITIONING | Yes |
| APPLIANCES | Dishwasher, Range, Refrigerator |
| AREA | 34442 - Hernando |
| BASEMENT | Crawl Space |
| CONSTRUCTION | Frame |
| EXTERIOR | Lighting |
| HEAT | Electric |
| INTERIOR | High Ceilings |
| LOT | 4.88 acre(s) |
| LOT DIMENSIONS | 378x670 |
| POOL | Yes |
| POOL DESCRIPTION | Above Ground, Private |
| SEWER | Septic Tank |
| STORIES | 1 |
| SUBDIVISION | RIVER OAKS UNREC |
| TAXES | 3327.71 |
| UTILITIES | Electricity Connected |
| WATER | Private, Well |
MORTGAGE CALCULATOR
TOTAL MONTHLY PAYMENT
0
P
I
*Estimate only
| SATELLITE VIEW |
| / | |
We respect your online privacy and will never spam you. By submitting this form with your telephone number
you are consenting for Greg
Lord to contact you even if your name is on a Federal or State
"Do not call List".
Listing provided by Holland McKnight, REMAX/PREMIER REALTY, 352-732-3222
The information contained herein has been provided by My Florida Regional MLS DBA Stellar MLS. IDX information is provided exclusively for consumers' personal, non-commercial use, that it may not be used for any purpose other than to identify prospective properties consumers may be interested in purchasing, and that the data is deemed reliable but is not guaranteed accurate by the MLS. Listings last updated 1/3/26 5:04 AM PST.
This IDX solution is (c) Diverse Solutions 2026.