|
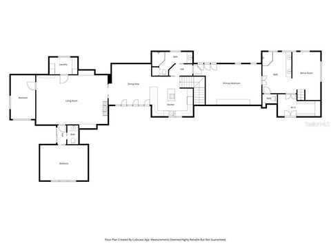
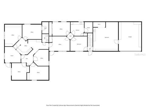
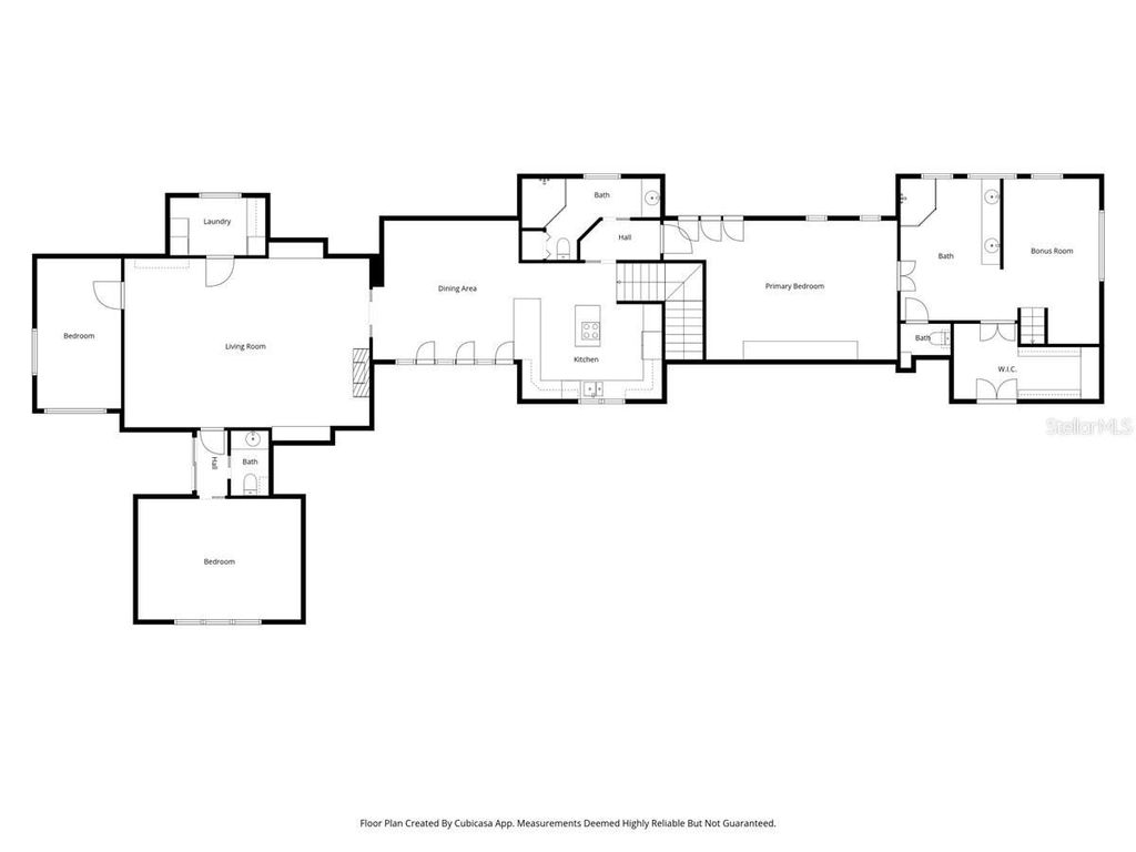
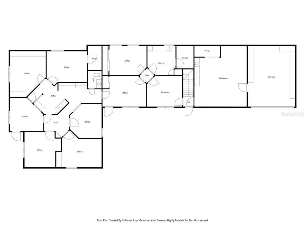
Discover exceptional versatility at 434 SW 14th St, Unit A, Ocala, FL 34471"”a rare mixed-use commercial and residential property offering endless possibilities for your business or investment portfolio. Zoned B1A, this space is ideal for a medical office, professional services, fleet operations, or a live-work setup. This well-located property offers excellent visibility and convenient access from major roadways, making it a strong choice for businesses needing both office functionality and flexible use options. The layout is well-suited for a doctor's office, administrative workspace, or other service-based operations. An added advantage is the vacant lot directly across the street, available to be used for parking, providing valuable convenience for staff, clients, or vehicles associated with fleet operations. Whether you're seeking a practical commercial space, a hybrid live-work environment, or a strategic business location with room for growth, this property delivers outstanding potential.
| DAYS ON MARKET | 83 | LAST UPDATED | 3/4/2026 |
|---|---|---|---|
| TRACT | MEADOWVIEW ADD 03 | YEAR BUILT | 1999 |
| COMMUNITY | 34471 - Ocala | COUNTY | Marion |
| STATUS | Active | PROPERTY TYPE(S) | Commercial |
| PRICE HISTORY | |
| Prior to Mar 4, '26 | $1,200,000 |
|---|---|
| Mar 4, '26 - Today | $1,050,000 |
| ADDITIONAL DETAILS | |
| AIR | Central Air |
|---|---|
| AIR CONDITIONING | Yes |
| APPLIANCES | Dishwasher, Dryer, Microwave, Refrigerator, Washer |
| AREA | 34471 - Ocala |
| CONSTRUCTION | Block, Stucco |
| HEAT | Electric, Heat Pump |
| INTERIOR | Bathrooms, Columns, Common Lighting, Extra Storage, Fiber Optic Available, Kitchen Facility, Loft, On Site Shower, Reception, Waiting Room |
| LOT | 7841 sq ft |
| LOT DESCRIPTION | Landscaped, Paved |
| SEWER | Public Sewer |
| STORIES | 2 |
| SUBDIVISION | MEADOWVIEW ADD 03 |
| TAXES | 9072 |
| UTILITIES | Electricity Available, Natural Gas Available, Phone Available, Water Connected |
| WATER | None |
MORTGAGE CALCULATOR
TOTAL MONTHLY PAYMENT
0
P
I
*Estimate only
| SATELLITE VIEW |
| / | |
We respect your online privacy and will never spam you. By submitting this form with your telephone number
you are consenting for Greg
Lord to contact you even if your name is on a Federal or State
"Do not call List".
Listing provided by Candis Starcher, WATSON REALTY CORP, 352-624-9300
The information contained herein has been provided by My Florida Regional MLS DBA Stellar MLS. IDX information is provided exclusively for consumers' personal, non-commercial use, that it may not be used for any purpose other than to identify prospective properties consumers may be interested in purchasing, and that the data is deemed reliable but is not guaranteed accurate by the MLS. Listings last updated 3/4/26 11:31 PM PST.
This IDX solution is (c) Diverse Solutions 2026.