|
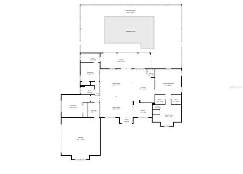
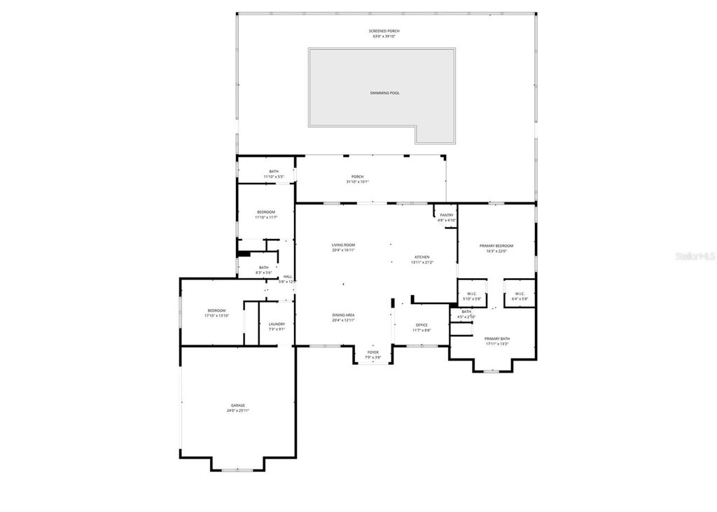
Experience refined country living at its finest in this beautifully maintained 2,400+ sq ft custom estate, perfectly positioned on 5+ pristine, fully fenced acres with an impressive automatic gated entry. From the moment you arrive, the property radiates privacy, sophistication, and pride of ownership. Inside, the home welcomes you with an open-concept design, soaring 10-ft crown-molded ceilings, and an abundance of natural light that fills the spacious living areas. The bright, airy layout is ideal for both relaxed everyday living and effortless entertaining. At the heart of the home, the chef's kitchen shines with marble countertops, a generous sit-in island with built-in storage, double wall ovens, and premium finishes, all enhanced by built-in surround sound that carries through the main living spaces. The primary suite is a luxurious escape featuring dual walk-in closets, a 6-ft soaking tub, a beautifully tiled walk-in shower, and a dual-sink vanity designed for comfort and style. The finished garage stands out with custom cabinetry, shelving, and tiled flooring"”offering exceptional storage, organization, and workspace for hobbies, vehicles, or equipment. Step outside to a true resort-style oasis. The 16x32 heated in-ground pool, spa-inspired hot tub, and expansive patio invite year-round relaxation and outdoor living. Whether you're enjoying quiet mornings by the water or hosting weekend gatherings, this space elevates everyday life. Energy-efficient upgrades"”including solar panels and a tankless water heater"”provide modern convenience and long-term savings. The open acreage offers endless possibilities: bring your horses, create recreational spaces, or plan future expansions tailored to your lifestyle. All of this is ideally located just 15 minutes from downtown Ocala and under 30 minutes from the World Equestrian Center"”close enough for convenience, yet far enough to enjoy the tranquility of private estate living. Seller is offering the option to purchase fully furnished, making this a rare turnkey property that effortlessly combines luxury, comfort, and unmatched privacy. Properties like this simply don't come along often. Schedule your tour TODAY!
| DAYS ON MARKET | 42 | LAST UPDATED | 11/21/2025 |
|---|---|---|---|
| TRACT | NO SUBDIVISION | YEAR BUILT | 2018 |
| COMMUNITY | 34479 - Ocala | GARAGE SPACES | 2.0 |
| COUNTY | Marion | STATUS | Active |
| PROPERTY TYPE(S) | Single Family |
| Elementary School | Ward-Highlands Elem. School |
|---|---|
| Jr. High School | Howard Middle School |
| High School | Vanguard High School |
| ADDITIONAL DETAILS | |
| AIR | Central Air |
|---|---|
| AIR CONDITIONING | Yes |
| APPLIANCES | Dishwasher, Dryer, Electric Water Heater, Exhaust Fan, Microwave, Other, Range, Refrigerator, Tankless Water Heater, Washer |
| AREA | 34479 - Ocala |
| CONSTRUCTION | Block, Stucco |
| EXTERIOR | Lighting, Other, Private Entrance, Private Yard, RV Hookup, Storage |
| GARAGE | Yes |
| HEAT | Active Solar, Electric, Solar |
| INTERIOR | Built-in Features, Crown Molding, Eat-in Kitchen, High Ceilings, Open Floorplan, Other |
| LOT | 5.06 acre(s) |
| PARKING | Attached |
| POOL | Yes |
| POOL DESCRIPTION | Heated, In Ground, Other, Private |
| SEWER | Septic Tank |
| STORIES | 1 |
| SUBDIVISION | NO SUBDIVISION |
| TAXES | 9133.87 |
| UTILITIES | Cable Available, Electricity Available |
| WATER | Private, Well |
MORTGAGE CALCULATOR
TOTAL MONTHLY PAYMENT
0
P
I
*Estimate only
| SATELLITE VIEW |
| / | |
We respect your online privacy and will never spam you. By submitting this form with your telephone number
you are consenting for Greg
Lord to contact you even if your name is on a Federal or State
"Do not call List".
Listing provided by Cameron Cowart, DALTON WADE INC, 888-668-8283
The information contained herein has been provided by My Florida Regional MLS DBA Stellar MLS. IDX information is provided exclusively for consumers' personal, non-commercial use, that it may not be used for any purpose other than to identify prospective properties consumers may be interested in purchasing, and that the data is deemed reliable but is not guaranteed accurate by the MLS. Listings last updated 1/2/26 8:51 AM PST.
This IDX solution is (c) Diverse Solutions 2026.