|
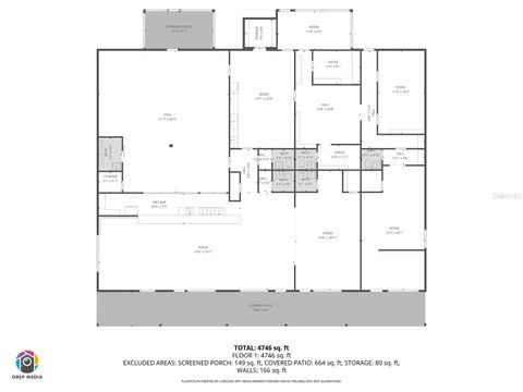
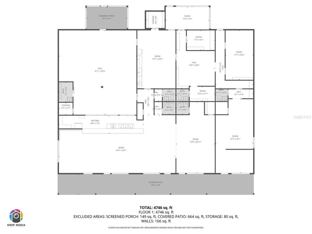
Under contract-accepting backup offers. Positioned directly along a major state highway with prominent frontage and excellent accessibility, this 4,800 sqft commercial building offers strategic potential for a variety of business ventures! Whether you're seeking a location for a restaurant, bar, retail shop, or other service-based operation, the flexibility of this property provides a great base point for further customization to achieve your vision. Situated on a .66 acre parcel with 276 ft of road frontage along North US Highway 441, the property is located across from a cross over that allows for easy access from both directions of traffic. The building itself features multiple functional areas that accommodate a wide range of commercial uses, including extensive storage, dedicated office spaces, larger open spaces, and a commercial kitchen space with a stand-up, walk-in cooler that has great potential for further customization. The interior layout supports both public-facing and operational needs, with options to customize for different configurations as you see fit. On the exterior of the building are two screened-in patios, a covered front entry, and an additional carport. The site is supported by ample on-site parking (13-18 spaces) and also includes a side yard that is cleared and undeveloped. Don't miss out on this valuable opportunity for an entrepreneur or investor to establish or expand operations in a high-visibility, growth-oriented corridor of Marion County!
| DAYS ON MARKET | 31 | LAST UPDATED | 10/30/2025 |
|---|---|---|---|
| YEAR BUILT | 1989 | COMMUNITY | 32686 - Reddick |
| COUNTY | Marion | STATUS | Pending |
| PROPERTY TYPE(S) | Commercial |
| ADDITIONAL DETAILS | |
| AIR | Central Air |
|---|---|
| AIR CONDITIONING | Yes |
| AREA | 32686 - Reddick |
| CONSTRUCTION | Block, Brick, Stucco |
| HEAT | Central |
| LOT | 0.66 acre(s) |
| LOT DESCRIPTION | Paved |
| LOT DIMENSIONS | 276X211 |
| PARKING | Other |
| SEWER | Septic Tank |
| TAXES | 98.05 |
| UTILITIES | Electricity Available, Phone Available, Water Connected |
| WATER | Private, Well |
MORTGAGE CALCULATOR
TOTAL MONTHLY PAYMENT
0
P
I
*Estimate only
| SATELLITE VIEW |
| / | |
We respect your online privacy and will never spam you. By submitting this form with your telephone number
you are consenting for Greg
Lord to contact you even if your name is on a Federal or State
"Do not call List".
Listing provided by Dawn Mahler, SHOWCASE PROPERTIES OF CENTRAL, 352-351-4718
The information contained herein has been provided by My Florida Regional MLS DBA Stellar MLS. IDX information is provided exclusively for consumers' personal, non-commercial use, that it may not be used for any purpose other than to identify prospective properties consumers may be interested in purchasing, and that the data is deemed reliable but is not guaranteed accurate by the MLS. Listings last updated 11/17/25 2:11 AM PST.
This IDX solution is (c) Diverse Solutions 2025.