|
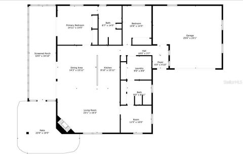
Kings Bay waterfront home right in the heart of Crystal River! This fully renovated 3-bedroom, 2-bathroom, 2-car garage block home sits on an oversized lot with 95 feet of seawall along a spring-fed canal, with direct access to Crystal River's waterways and the Gulf waters - with NO BRIDGES. Inside, you'll love the bright, open floor plan with soaring cathedral ceilings, elegant porcelain tile floors throughout, and a cozy stone fireplace. The chef's kitchen is the centerpiece of the home, showcasing quartz countertops, custom wood cabinetry, and premium appliances. A spacious Florida room overlooks your park-like backyard, complete with 2 floating docks, seawall, covered paver patio, and the perfect setting for entertaining, fishing, or simply relaxing while manatees and dolphins swim by. This home has been completely updated from top to bottom with new windows, a new roof, and modern finishes throughout. Truly move-in ready for its next owners. The location is unbeatable with the exclusive golf-cart-friendly "Village of Picardy" neighborhood that puts you minutes from local restaurants, shops, and world-famous attractions including **Three Sisters Springs, Hunter Springs, and the Kings Bay Riverwalk. Outdoor adventures like scalloping, snorkeling with manatees, swimming with dolphins, and world-class fishing are right outside your door. If you've been waiting for the perfect waterfront property, this is it. A rare opportunity to own a piece of Crystal River paradise with direct Gulf access and a lifestyle unlike any other in Citrus County. The location is unbeatable with the exclusive golf-cart-friendly "Village of Picardy" that puts you minutes from local restaurants, shops, and world-famous attractions including **Three Sisters Springs, Hunter Springs, and the Kings Bay Riverwalk. Outdoor adventures like scalloping, snorkeling with manatees, swimming with dolphins, and world-class fishing are right outside your door. If you've been waiting for the perfect waterfront property, this is it. A rare opportunity to own a piece of Crystal River paradise with direct Gulf access and a lifestyle unlike any other in Citrus County. -------------------------------------------------------------
| DAYS ON MARKET | 49 | LAST UPDATED | 10/2/2025 |
|---|---|---|---|
| TRACT | 001896 VILLAGE OF PICARDY | YEAR BUILT | 1977 |
| COMMUNITY | 34429 - Crystal River | GARAGE SPACES | 2.0 |
| COUNTY | Citrus | STATUS | Active |
| PROPERTY TYPE(S) | Single Family |
| Elementary School | Crystal River Primary School |
|---|---|
| Jr. High School | Crystal River Middle School |
| High School | Crystal River High School |
| ADDITIONAL DETAILS | |
| AIR | Central Air |
|---|---|
| AIR CONDITIONING | Yes |
| APPLIANCES | Dishwasher, Disposal, Dryer, Electric Water Heater, Microwave, Range, Refrigerator, Washer |
| AREA | 34429 - Crystal River |
| CONSTRUCTION | Concrete |
| EXTERIOR | Dock, Storage |
| FIREPLACE | Yes |
| GARAGE | Yes |
| HEAT | Central, Electric |
| INTERIOR | Open Floorplan, Stone Counters |
| LOT | 0.35 acre(s) |
| LOT DESCRIPTION | Waterfront |
| PARKING | Garage Faces Side, Attached |
| SEWER | Public Sewer |
| STORIES | 1 |
| SUBDIVISION | 001896 VILLAGE OF PICARDY |
| TAXES | 4816.32 |
| UTILITIES | Cable Available, Electricity Connected, Sewer Connected, Water Connected |
| VIEW | Yes |
| VIEW DESCRIPTION | Water |
| WATER | Public |
| WATERFRONT | Yes |
| WATERFRONT DESCRIPTION | Ocean Front |
MORTGAGE CALCULATOR
TOTAL MONTHLY PAYMENT
0
P
I
*Estimate only
| / | |
We respect your online privacy and will never spam you. By submitting this form with your telephone number
you are consenting for Greg
Lord to contact you even if your name is on a Federal or State
"Do not call List".
Listing provided by Reciprocal Listing OMCAR, OCALA MARION COUNTY AOR, 352-629-2415
The information contained herein has been provided by My Florida Regional MLS DBA Stellar MLS. IDX information is provided exclusively for consumers' personal, non-commercial use, that it may not be used for any purpose other than to identify prospective properties consumers may be interested in purchasing, and that the data is deemed reliable but is not guaranteed accurate by the MLS. Listings last updated 11/18/25 3:46 AM PST.
This IDX solution is (c) Diverse Solutions 2025.