9915 County Road 44, Leesburg, FL 34788 (MLS # OM707341)

Save to Favorites
Print
Share
PRICE $1,400,000 dsIDX morgage calculator
SIZE 270,072 sqft
LOT SIZE 3.33 ac

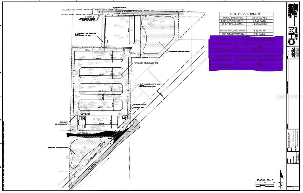
Prime Self-Storage Development Opportunity in Lake County, FL Seize this rare chance to acquire a fully prepared, development-ready parcel in Lake County, Florida, zoned and approved for a state-of-the-art self-storage facility. Comprising four parcels, this property is primed for immediate construction, offering a fast-tracked timeline for investors and developers looking to capitalize on Central Florida's booming self-storage market. With versatile zoning allowing for multiple uses, this is a unique opportunity in a high-growth region. Property Highlights Development-Ready for Self-Storage: Rezoned to CP (Planned Commercial), with self-storage approved by right, eliminating zoning hurdles. Includes a comprehensive concept plan for a 101,380 sq ft facility (86,175 sq ft net rentable, 95.24 climate-controlled), fully permitted and ready for construction. Completed Due Diligence: Boundary and topographic surveys completed, along with environmental studies, ensuring no delays in development. Strong Financial Projections: Proforma included, projecting a Net Operating Income (NOI) of $994,195. Cap rate valuations: $16.57M (6.0 ), $18.08M (5.5 ), or $19.88M (5.0 ). Gross potential income of $1.58M with a 65.73 cost-to-value ratio at 5.5 cap. Strategic Location: Situated in Lake County, a high-growth area with 4.7 annual population growth, outpacing the national average. Proximity to Orlando, I-75, and the Florida Turnpike ensures excellent accessibility and visibility. Low storage inventory (est. 5.5 sq ft vs. 7-8 sq ft nationally) underscores strong market demand. Versatile Zoning: CP zoning supports self-storage and a variety of other commercial uses, offering flexibility for future development or alternative projects. Business-Friendly Environment: Lake County's pro-business policies and high-traffic corridors make this an ideal location for a successful self-storage operation. Additional Information Financing Available: Pre-approved financing through Jen Jones Loans LLC; terms and rates vary based on buyer qualifications. Market Advantage: Lake County's rapid growth and underserved self-storage market create exceptional potential for high returns. This turnkey property offers a unique opportunity to develop a premier self-storage facility in one of Florida's fastest-growing regions. Don't miss your chance to invest in a market with strong demand and minimal competition. Contact us today to review the concept plan, proforma, and additional details!

DAYS ON MARKET 146 LAST UPDATED 12/18/2025
YEAR BUILT 2024 COMMUNITY 34788 - Leesburg / Haines Creek
COUNTY Lake STATUS Active
PROPERTY TYPE(S) Commercial

PRICE HISTORY
Prior to Dec 18, '25 $1,850,000
Dec 18, '25 - Today $1,400,000


ADDITIONAL DETAILS
AIR Other
AIR CONDITIONING Yes
AREA 34788 - Leesburg / Haines Creek
CONSTRUCTION Other
LOT 3.33 acre(s)
TAXES 1948
MORTGAGE CALCULATOR
   

TOTAL MONTHLY PAYMENT

0
P
I
*Estimate only

SATELLITE VIEW



 
CONTACT US ABOUT 9915 COUNTY ROAD 44
 / 
We respect your online privacy and will never spam you. By submitting this form with your telephone number you are consenting for Greg Lord to contact you even if your name is on a Federal or State "Do not call List".

Listing provided by Safal Desai, FLORIDA HOMES REALTY & MORTGAGE, 904-996-9144
The information contained herein has been provided by My Florida Regional MLS DBA Stellar MLS. IDX information is provided exclusively for consumers' personal, non-commercial use, that it may not be used for any purpose other than to identify prospective properties consumers may be interested in purchasing, and that the data is deemed reliable but is not guaranteed accurate by the MLS. Listings last updated 1/2/26 3:52 AM PST.

This IDX solution is (c) Diverse Solutions 2026.