|
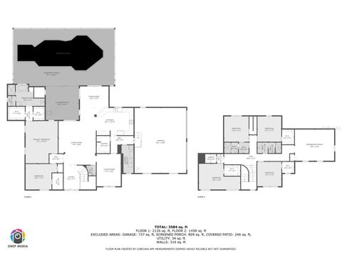
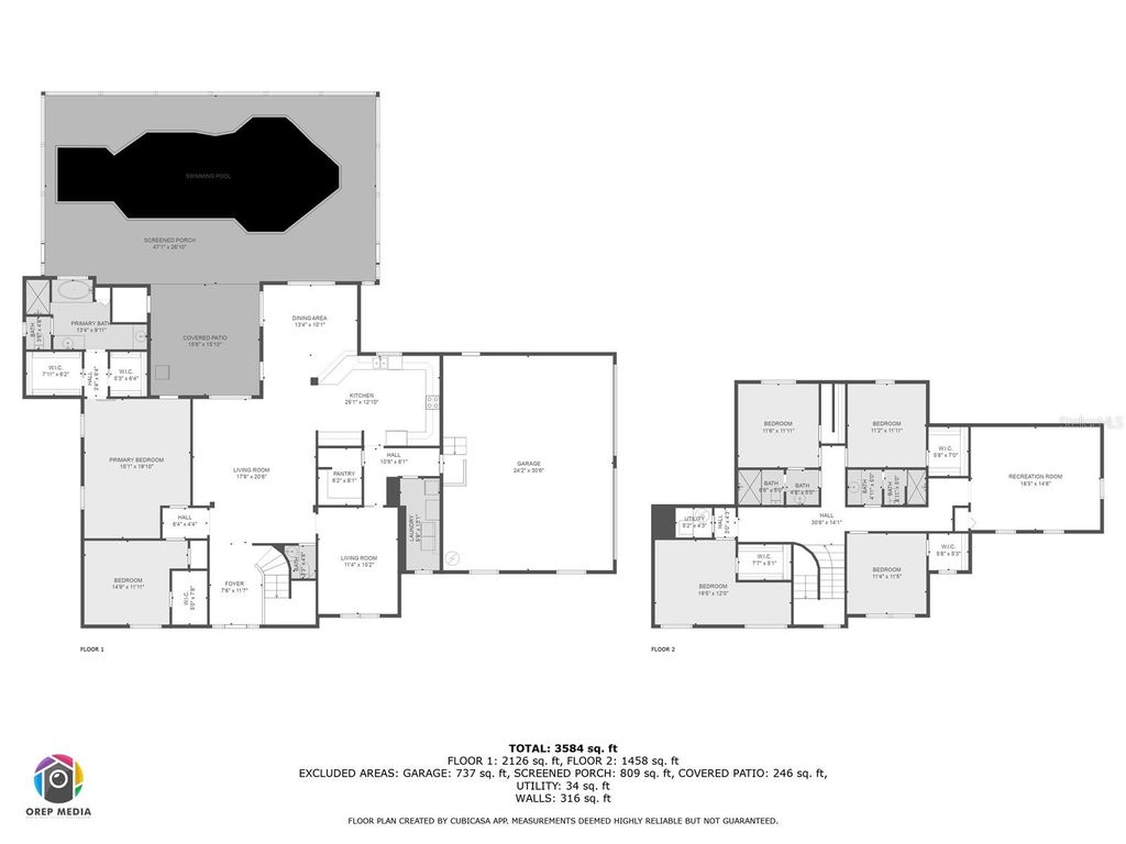
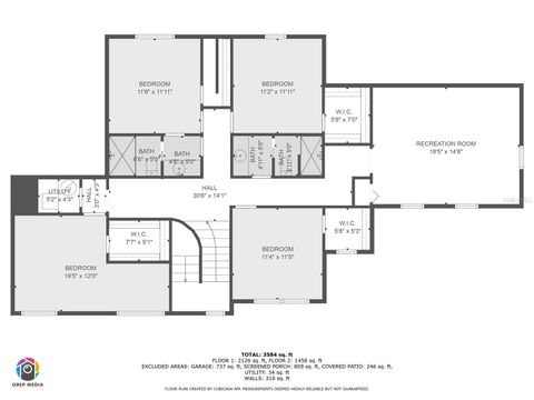
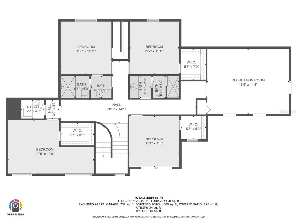
Bring your family, pets, and all your toys to this Gracious custom 2 story pool home, featuring 6 bedrooms, 3 full baths, 2 half baths, a 3 car garage, basketball court, and so much more, on a private fenced 2.5 acre estate shaded by immense oak trees that dot the property, all residing on a dead end street. Primary bedroom suite is on the first floor, along with a formal dining room, living room, office (or bedroom) as well as a large dine in kitchen, while the remaining bedrooms are upstairs, along with a bonus family room. Plenty of room on the property for gardens, possibly even livestock! No HOA - there is so much more to this property that you have to see to believe. HVAC replaced in 2017, roof replaced in 2018, 24 windows replaced in 2022.
| DAYS ON MARKET | 149 | LAST UPDATED | 8/20/2025 |
|---|---|---|---|
| TRACT | FLORIDA ORANGE GROVE CORP | YEAR BUILT | 1997 |
| COMMUNITY | 34480 - Ocala | GARAGE SPACES | 3.0 |
| COUNTY | Marion | STATUS | Active |
| PROPERTY TYPE(S) | Single Family |
| PRICE HISTORY | |
| Prior to Jul 25, '25 | $1,049,999 |
|---|---|
| Jul 25, '25 - Aug 20, '25 | $998,500 |
| Aug 20, '25 - Today | $939,000 |
| ADDITIONAL DETAILS | |
| AIR | Central Air |
|---|---|
| AIR CONDITIONING | Yes |
| APPLIANCES | Dishwasher, Dryer, Electric Water Heater, Microwave, Range, Refrigerator, Washer |
| AREA | 34480 - Ocala |
| CONSTRUCTION | Block, Stucco |
| EXTERIOR | Garden, Rain Gutters, Storage |
| GARAGE | Yes |
| HEAT | Central |
| INTERIOR | Cathedral Ceiling(s), High Ceilings, Open Floorplan, Vaulted Ceiling(s), Walk-In Closet(s) |
| LOT | 2.5 acre(s) |
| LOT DESCRIPTION | Cleared, Landscaped, Paved |
| LOT DIMENSIONS | 165x660 |
| PARKING | Attached |
| POOL | Yes |
| POOL DESCRIPTION | Heated, In Ground, Private |
| SEWER | Septic Tank |
| STORIES | 2 |
| SUBDIVISION | FLORIDA ORANGE GROVE CORP |
| TAXES | 9963.94 |
| UTILITIES | Cable Available, Cable Connected, Electricity Connected, Sewer Connected, Underground Utilities, Water Connected |
| VIEW | Yes |
| VIEW DESCRIPTION | Garden, Trees/Woods |
| WATER | Private, Well |
MORTGAGE CALCULATOR
TOTAL MONTHLY PAYMENT
0
P
I
*Estimate only
| SATELLITE VIEW |
| / | |
We respect your online privacy and will never spam you. By submitting this form with your telephone number
you are consenting for Greg
Lord to contact you even if your name is on a Federal or State
"Do not call List".
Listing provided by Mary Mannis, OLYMPUS EXECUTIVE REALTY INC, 407-469-0090
The information contained herein has been provided by My Florida Regional MLS DBA Stellar MLS. IDX information is provided exclusively for consumers' personal, non-commercial use, that it may not be used for any purpose other than to identify prospective properties consumers may be interested in purchasing, and that the data is deemed reliable but is not guaranteed accurate by the MLS. Listings last updated 11/17/25 2:55 AM PST.
This IDX solution is (c) Diverse Solutions 2025.