|
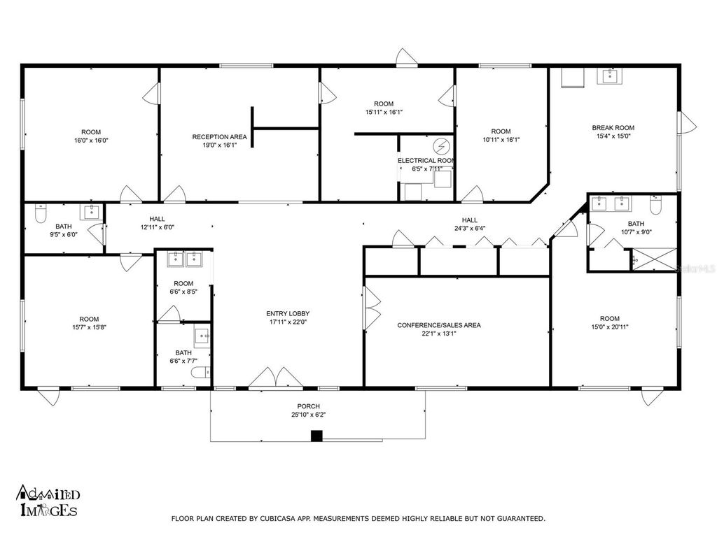
Located in the heart of Citrus County, just 55 minutes from Tampa International Airport, this fully renovated 3,200 SF executive office building offers a prime investment opportunity. Situated directly on State Road 44 (29,500 AADT) on 0.71 acres of General Commercial-zoned land, the property features four private offices, a large conference room, reception, mail/copy room, oversized lobby, breakroom, and three ADA-compliant restrooms. With 37 parking spaces, full city utilities, and high-end finishes throughout, the space is ideal for professional or medical use. The property is leased to a national newspaper conglomerate under a corporate-guaranteed NNN lease with 2.5% annual rent increases and two 3-year renewal options, offering strong passive income. Citrus County's office sector remains one of the strongest performers in Central Florida, with average cap rates near 6%. Positioned just 2.2 miles from Historic Downtown Inverness and near key civic and healthcare centers, the site enjoys regional access to major communities like Lecanto, Crystal River, and Homosassa. Citrus County is one of Florida's fastest-growing areas, with projections exceeding 350,000 residents by 2030 and inclusion in the Tampa-St. Petersburg-Clearwater MSA, the 18th largest in the U.S. This property offers rare value in a growing market"”ideal for investors seeking stable returns or end-users looking to secure a premium, high-visibility location. Disclaimer: All information provided herein is for marketing purposes only and is not guaranteed for accuracy. Prospective buyers or tenants are encouraged to conduct their own independent due diligence. The seller, broker, and associated parties make no representations or warranties, expressed or implied, as to the accuracy or completeness of this information. All dimensions, zoning details, financial data, and other property-related facts should be independently verified. Please consult with appropriate licensed professionals before making any investment or purchasing decisions.
| DAYS ON MARKET | 572 | LAST UPDATED | 11/4/2025 |
|---|---|---|---|
| TRACT | INVERNESS VILLAGE UNIT 03 | YEAR BUILT | 1985 |
| COMMUNITY | 34453 - Inverness | COUNTY | Citrus |
| STATUS | Active | PROPERTY TYPE(S) | Commercial |
| PRICE HISTORY | |
| Prior to Apr 29, '25 | $699,900 |
|---|---|
| Apr 29, '25 - Apr 30, '25 | $75,000 |
| Apr 30, '25 - Aug 5, '25 | $750,000 |
| Aug 5, '25 - Sep 25, '25 | $725,000 |
| Sep 25, '25 - Nov 4, '25 | $699,900 |
| Nov 4, '25 - Today | $675,000 |
| ADDITIONAL DETAILS | |
| AREA | 34453 - Inverness |
|---|---|
| CONSTRUCTION | Block, Brick |
| LOT | 0.71 acre(s) |
| LOT DESCRIPTION | Wooded |
| LOT DIMENSIONS | 175x345 |
| SEWER | Public Sewer |
| STORIES | 1 |
| SUBDIVISION | INVERNESS VILLAGE UNIT 03 |
| TAXES | 6360.19 |
| WATER | Public |
MORTGAGE CALCULATOR
TOTAL MONTHLY PAYMENT
0
P
I
*Estimate only
| SATELLITE VIEW |
| / | |
We respect your online privacy and will never spam you. By submitting this form with your telephone number
you are consenting for Greg
Lord to contact you even if your name is on a Federal or State
"Do not call List".
Listing provided by Elias Kirallah, CENTURY 21 J.W.MORTON R.E., 352-726-6668
The information contained herein has been provided by My Florida Regional MLS DBA Stellar MLS. IDX information is provided exclusively for consumers' personal, non-commercial use, that it may not be used for any purpose other than to identify prospective properties consumers may be interested in purchasing, and that the data is deemed reliable but is not guaranteed accurate by the MLS. Listings last updated 11/17/25 3:01 AM PST.
This IDX solution is (c) Diverse Solutions 2025.