1497 NW 48th Terrace, Ocala, FL 34482 (MLS # O6395154)

Save to Favorites
Print
Share
PRICE $331,990 dsIDX morgage calculator
BEDS 5
BATHS 3
HOME SIZE 2,449 sqft
LOT SIZE 7,841 sqft

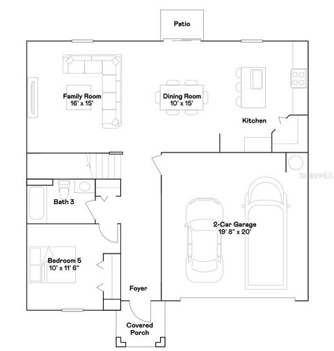
Under Construction. The first floor of this two-story home shares an open layout between the kitchen, dining area and family room for easy entertaining with access to the patio. A secondary bedroom on the first floor can easily be converted to a guest room or home office. Upstairs is a versatile loft that serves as an additional shared living space, along with three secondary bedrooms and a peaceful owner's suite comprised of an en-suite bathroom and a large walk-in closet.

DAYS ON MARKET 1 LAST UPDATED 3/31/2026
TRACT HEATH PRESERVE YEAR BUILT 2026
COMMUNITY 34482 - Ocala GARAGE SPACES 2.0
COUNTY Marion STATUS Active
PROPERTY TYPE(S) Single Family

SCHOOLS
Elementary School College Park Elementary School
Jr. High School Liberty Middle School
High School West Port High School


ADDITIONAL DETAILS
AIR Central Air
AIR CONDITIONING Yes
APPLIANCES Dishwasher, Disposal
AREA 34482 - Ocala
CONSTRUCTION Block
GARAGE Yes
HEAT Heat Pump
HOA DUES 555
INTERIOR Walk-In Closet(s)
LOT 7841 sq ft
PARKING Attached
SEWER Public Sewer
STORIES 2
SUBDIVISION HEATH PRESERVE
WATER Public
MORTGAGE CALCULATOR
   

TOTAL MONTHLY PAYMENT

0
P
I
*Estimate only

SATELLITE VIEW



 
CONTACT US ABOUT 1497 NW 48TH TERRACE
 / 
We respect your online privacy and will never spam you. By submitting this form with your telephone number you are consenting for Greg Lord to contact you even if your name is on a Federal or State "Do not call List".

Listing provided by Ben Goldstein, LENNAR REALTY, 352-254-5979
The information contained herein has been provided by My Florida Regional MLS DBA Stellar MLS. IDX information is provided exclusively for consumers' personal, non-commercial use, that it may not be used for any purpose other than to identify prospective properties consumers may be interested in purchasing, and that the data is deemed reliable but is not guaranteed accurate by the MLS. Listings last updated 4/1/26 7:54 AM PDT.

This IDX solution is (c) Diverse Solutions 2026.