|
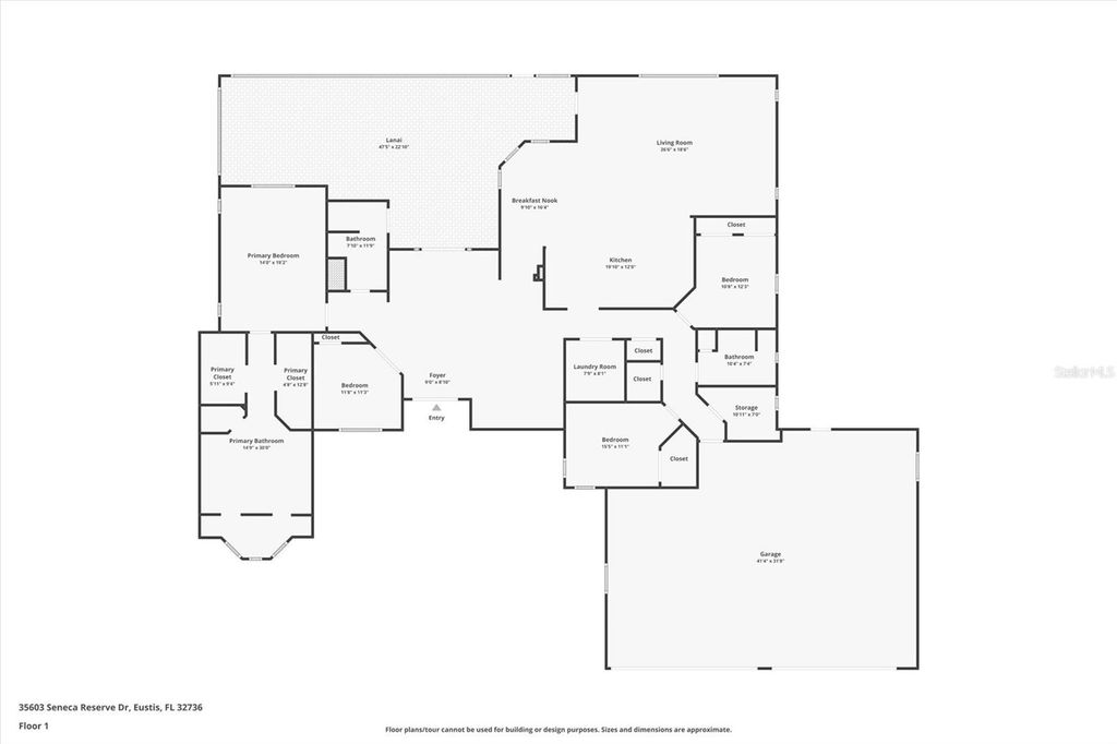
One or more photo(s) has been virtually staged. Step into your dream home in the beautiful gated equestrian community of The Reserve at Lake Seneca. This custom-built home sits on almost 3 acres of peaceful, private land "” perfect for horses, gardening, or simply enjoying the outdoors. The property offers abundant space for your toys, RVs, and trailers, making it an ideal setup for all your lifestyle needs. Inside, you'll find 3,209 square feet of thoughtfully designed living space with high ceilings, crown molding, plantation shutters, and 20" Italian ceramic tile throughout. The gourmet kitchen is a showstopper with KitchenAid appliances, a huge center island, granite countertops, dual pantries, and plenty of storage. The primary suite feels like a true retreat with dual walk-in closets, a clawfoot soaking tub, dual vanities, and a spacious walk-through shower. There are also two additional bedrooms, a study/office and three full bathrooms. Practical upgrades include spray foam insulation, two Trane AC units, a 66-gallon heat pump water heater, new water treatment system, and an oversized four-car garage with epoxy floors and a walk-up storage area. Outside, relax on the screened lanai or unwind in the hot tub overlooking your fenced backyard surrounded by mature trees. The home also features a circular paver driveway, fresh exterior paint, and updated landscaping. Tucked away in East Lake County, this property offers quiet country living with easy access to shopping, dining, the new 429 expressway, Mount Dora, and Orlando attractions. HOA includes high-speed fiber optic internet and an awesome cable package! This home truly has it all "” space, style, and serenity. Come see it for yourself and fall in love with The Reserve at Lake Seneca!
| DAYS ON MARKET | 194 | LAST UPDATED | 4/30/2026 |
|---|---|---|---|
| TRACT | RESERVE AT LAKE SENECA | YEAR BUILT | 2018 |
| COMMUNITY | 32736 - Eustis | GARAGE SPACES | 4.0 |
| COUNTY | Lake | STATUS | Active |
| PROPERTY TYPE(S) | Single Family |
| Elementary School | Seminole Springs. Elem |
|---|---|
| Jr. High School | Eustis Middle |
| High School | Eustis High School |
| PRICE HISTORY | |
| Prior to Jan 5, '26 | $1,049,000 |
|---|---|
| Jan 5, '26 - Apr 1, '26 | $979,900 |
| Apr 1, '26 - Apr 20, '26 | $974,900 |
| Apr 20, '26 - Apr 30, '26 | $949,900 |
| Apr 30, '26 - Today | $898,000 |
| ADDITIONAL DETAILS | |
| AIR | Central Air |
|---|---|
| AIR CONDITIONING | Yes |
| AMENITIES | Cable TV, Internet |
| APPLIANCES | Cooktop, Dishwasher, Disposal, Microwave, Refrigerator, Water Softener |
| AREA | 32736 - Eustis |
| CONSTRUCTION | Block, Stucco |
| EXTERIOR | Lighting, Rain Gutters |
| GARAGE | Yes |
| HEAT | Central |
| HOA DUES | 280 |
| INTERIOR | Crown Molding, High Ceilings, Open Floorplan, Stone Counters, Tray Ceiling(s), Walk-In Closet(s) |
| LOT | 2.77 acre(s) |
| LOT DESCRIPTION | Paved |
| PARKING | Circular Driveway, Driveway, Garage Door Opener, Oversized, Attached |
| SEWER | Septic Tank |
| STORIES | 1 |
| SUBDIVISION | RESERVE AT LAKE SENECA |
| TAXES | 6945.68 |
| UTILITIES | Cable Available, Cable Connected, Electricity Connected |
| VIEW | Yes |
| VIEW DESCRIPTION | Trees/Woods |
| WATER | Private, Well |
| WATERFRONT DESCRIPTION | Lake Privileges |
MORTGAGE CALCULATOR
TOTAL MONTHLY PAYMENT
0
P
I
*Estimate only
| SATELLITE VIEW |
| / | |
We respect your online privacy and will never spam you. By submitting this form with your telephone number
you are consenting for Greg
Lord to contact you even if your name is on a Federal or State
"Do not call List".
Listing provided by Barry McSwain, LPT REALTY, LLC, 877-366-2213
The information contained herein has been provided by My Florida Regional MLS DBA Stellar MLS. IDX information is provided exclusively for consumers' personal, non-commercial use, that it may not be used for any purpose other than to identify prospective properties consumers may be interested in purchasing, and that the data is deemed reliable but is not guaranteed accurate by the MLS. Listings last updated 5/12/26 5:13 PM PDT.
This IDX solution is (c) Diverse Solutions 2026.