|
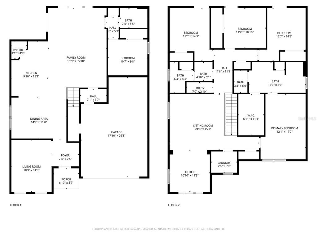
Price Reduction! This 3,200 square plus expansive beauty was built in 2022 and at that time did not have many of the tasteful appointments that are now found. The time and money spent on upgrades by the current owners are a gift to you! Pride of ownership, a gift for design, and impeccable housekeeping allow this cozy, comfortable, convenient Eustis home to show like a model. The abundance of natural light soothingly enhances the soft colors and tones. Decorative wall panels in the Dining and Bonus rooms further enhance the attractive and relaxing atmosphere. Designer light fixtures and ceiling fans add their complements to this ready for you opportunity. Located along the Estes Road corridor where you are not only close to nature, but the tri-cities as well. Lake Lincoln is a small, secluded community that allows this home to back up to lush natural verdure. The generous square footage allows the first floor to provide a formal living room, a huge open dining area, kitchen that includes a Samsung smart refrigerator , family room, full bath, as well as a downstairs bedroom that could serve as a home office. Ascend the stairs to the second floor Flex Room. Nearby you'll you find the Primary Bedroom/Master Suite at the opposite end of the home from the remaining three bedrooms and bathroom. And for convenience, of course you'll find the laundry room here on the second floor. This is just a word description of the attractive and functional home waiting for its new residents. Contact your agent and schedule your tour today!
| DAYS ON MARKET | 162 | LAST UPDATED | 3/20/2026 |
|---|---|---|---|
| TRACT | LAKE LINCOLN SUB | YEAR BUILT | 2022 |
| COMMUNITY | 32736 - Eustis | GARAGE SPACES | 2.0 |
| COUNTY | Lake | STATUS | Active |
| PROPERTY TYPE(S) | Single Family |
| Elementary School | Eustis Elem |
|---|---|
| Jr. High School | Eustis Middle |
| High School | Eustis High School |
| PRICE HISTORY | |
| Prior to Nov 28, '25 | $490,000 |
|---|---|
| Nov 28, '25 - Mar 20, '26 | $475,000 |
| Mar 20, '26 - Today | $469,500 |
| ADDITIONAL DETAILS | |
| AIR | Central Air |
|---|---|
| AIR CONDITIONING | Yes |
| APPLIANCES | Dishwasher, Disposal, Electric Water Heater, Ice Maker, Microwave, Range, Refrigerator |
| AREA | 32736 - Eustis |
| CONSTRUCTION | Block, Frame, Stucco |
| GARAGE | Yes |
| HEAT | Central, Electric |
| HOA DUES | 100 |
| INTERIOR | Open Floorplan, Walk-In Closet(s) |
| LOT | 6534 sq ft |
| LOT DESCRIPTION | Level |
| LOT DIMENSIONS | 55x120 |
| PARKING | Attached |
| SEWER | Public Sewer |
| STORIES | 2 |
| STYLE | Florida |
| SUBDIVISION | LAKE LINCOLN SUB |
| TAXES | 6095.94 |
| UTILITIES | Cable Available, Electricity Connected, Sewer Connected, Underground Utilities |
| WATER | Public |
MORTGAGE CALCULATOR
TOTAL MONTHLY PAYMENT
0
P
I
*Estimate only
| SATELLITE VIEW |
| / | |
We respect your online privacy and will never spam you. By submitting this form with your telephone number
you are consenting for Greg
Lord to contact you even if your name is on a Federal or State
"Do not call List".
Listing provided by George Crawford, PA, DALTON WADE INC, 888-668-8283
The information contained herein has been provided by My Florida Regional MLS DBA Stellar MLS. IDX information is provided exclusively for consumers' personal, non-commercial use, that it may not be used for any purpose other than to identify prospective properties consumers may be interested in purchasing, and that the data is deemed reliable but is not guaranteed accurate by the MLS. Listings last updated 4/4/26 3:11 AM PDT.
This IDX solution is (c) Diverse Solutions 2026.