|
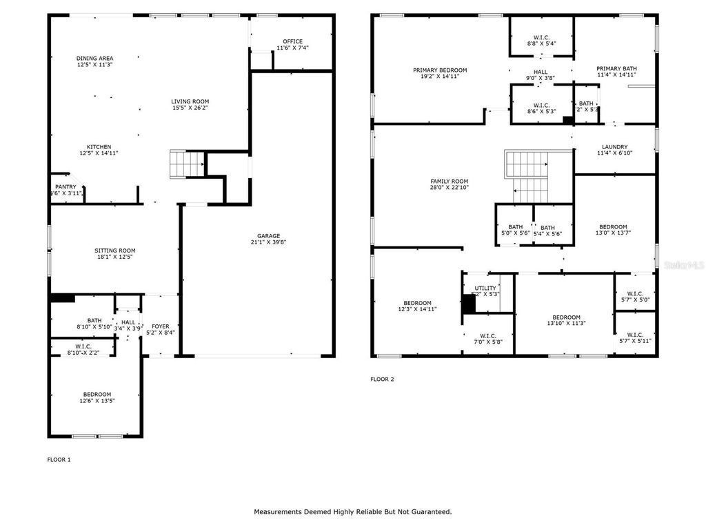
Welcome to this stunning 5 bedroom, 3 bath home with 3,291 sq. ft. located in the beautiful Trinity Lakes community in Groveland, Florida, just 10 minutes from Downtown Clermont! Designed for comfort, space, and modern living, this energy-efficient home includes solar panels to help save on utilities. The open-concept layout features high ceilings, bright natural light, and elegant finishes throughout. The gourmet kitchen offers stainless steel appliances, quartz countertops, a large island, and a spacious walk-in pantry. All bedrooms include walk-in closets, and the primary suite stands out with two individual walk-in closets, perfect for couples who prefer separate personal spaces. The home also includes a private office with built-in counter and its own closet, ideal for remote work or creative projects. Enjoy outdoor living in the beautifully designed fenced backyard, featuring pavers, a screened porch, and a cozy fire pit, perfect for entertaining or relaxing evenings. The three-car tandem garage and wide driveway provide plenty of parking and storage. Trinity Lakes offers resort style amenities including a pool, fitness center, dog park, walking trails, and playgrounds, all within easy access to major highways, top-rated schools, and shopping. This home perfectly blends efficiency, comfort, and style, ready for you to make it your own. Your home. Your story. We walk together.
| DAYS ON MARKET | 27 | LAST UPDATED | 11/4/2025 |
|---|---|---|---|
| TRACT | TRINITY LAKES 60 | YEAR BUILT | 2023 |
| COMMUNITY | 34736 - Groveland | GARAGE SPACES | 3.0 |
| COUNTY | Lake | STATUS | Active |
| PROPERTY TYPE(S) | Single Family |
| Elementary School | Groveland Elem |
|---|---|
| Jr. High School | Gray Middle |
| High School | South Lake High |
| PRICE HISTORY | |
| Prior to Nov 4, '25 | $519,990 |
|---|---|
| Nov 4, '25 - Today | $499,990 |
| ADDITIONAL DETAILS | |
| AIR | Central Air |
|---|---|
| AIR CONDITIONING | Yes |
| APPLIANCES | Dishwasher, Dryer, Microwave, Range, Refrigerator, Washer |
| AREA | 34736 - Groveland |
| CONSTRUCTION | Block, Stucco |
| EXTERIOR | Balcony, Garden, Lighting |
| GARAGE | Yes |
| HEAT | Central, Electric |
| HOA DUES | 95 |
| INTERIOR | Open Floorplan, Walk-In Closet(s) |
| LOT | 7405 sq ft |
| PARKING | Driveway, Garage Door Opener, Attached |
| SEWER | Public Sewer |
| STORIES | 2 |
| SUBDIVISION | TRINITY LAKES 60 |
| TAXES | 9500 |
| UTILITIES | Cable Available, Electricity Available, Phone Available, Sewer Available, Underground Utilities, Water Available |
| WATER | Public |
MORTGAGE CALCULATOR
TOTAL MONTHLY PAYMENT
0
P
I
*Estimate only
| SATELLITE VIEW |
| / | |
We respect your online privacy and will never spam you. By submitting this form with your telephone number
you are consenting for Greg
Lord to contact you even if your name is on a Federal or State
"Do not call List".
Listing provided by Margaret Williams, NONA LEGACY POWERED BY LA ROSA, 407-270-6841
The information contained herein has been provided by My Florida Regional MLS DBA Stellar MLS. IDX information is provided exclusively for consumers' personal, non-commercial use, that it may not be used for any purpose other than to identify prospective properties consumers may be interested in purchasing, and that the data is deemed reliable but is not guaranteed accurate by the MLS. Listings last updated 11/16/25 10:56 PM PST.
This IDX solution is (c) Diverse Solutions 2025.