|
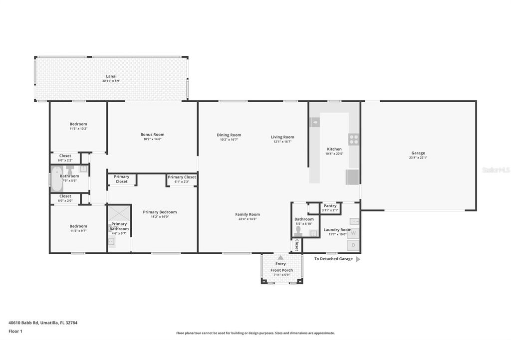
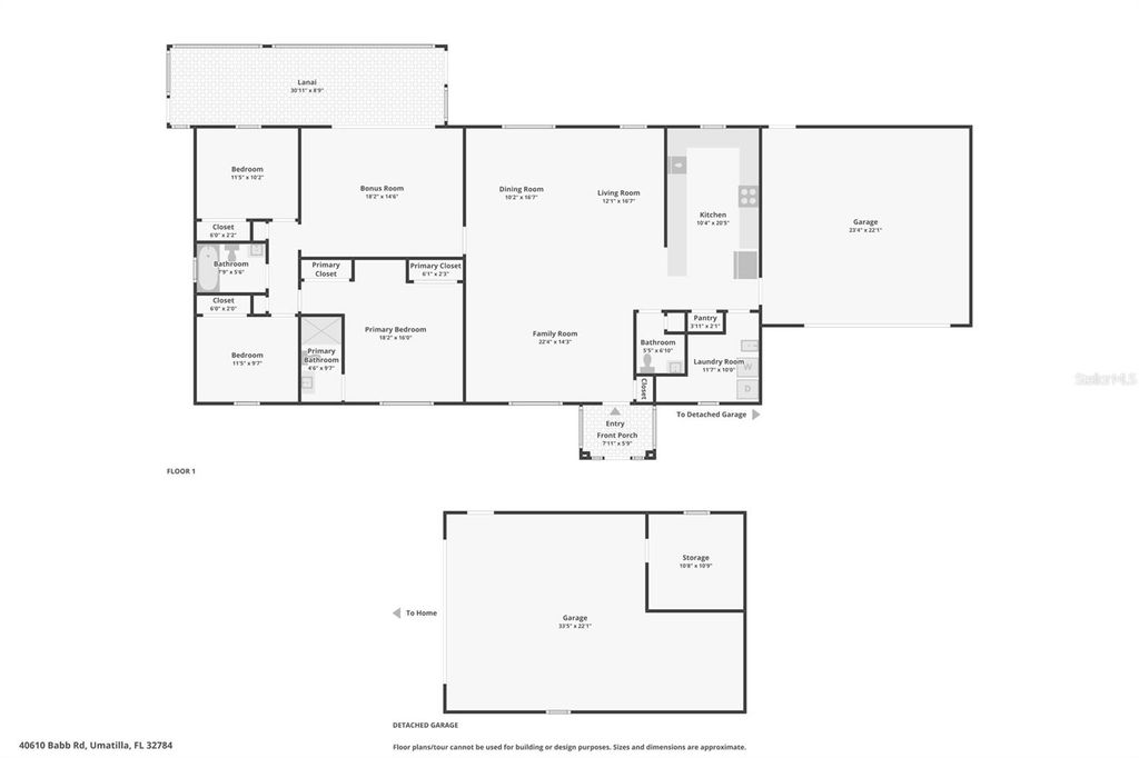
8.5 ACRES AG-ZONED COMPOUND + 4-CAR GARAGE | NO HOA | BUILD YOUR WORKSHOP HERE THE "IMPOSSIBLE TO FIND" FLORIDA COMPOUND. Stop looking for a house and start looking for a legacy property. Sitting on 8.51 acres of Agriculture-Zoned land with NO HOA, this 2015-built custom estate is not just a home"”it is a blank canvas for your business, your toys, or your extended family. THE LAND & FREEDOM: Zoned Agriculture (Ag) means freedom. "¢ Business Owners: Need to park excavators, work trucks, or trailers? You have acres of open, high-and-dry pasture ready for your heavy equipment. "¢ The "Barndo" Dream: The property is primed for a massive 60x80 metal building, workshop, or barn. "¢ Multi-Generational Potential: With over 8 acres, this site is a prime candidate for a future Guest House (ADU) or second family dwelling (buyer to verify with Lake County). Stop squeezing your family into a subdivision and build your compound here. THE TOY BOX (4-CAR GARAGE): A car collector's dream or a mechanic's start-up. The additional garage/workshop offers massive storage for classics, boats, or a professional-grade workshop right off the kitchen. THE ANCHOR HOME: While you build your dreams outside, live in modern luxury inside. Built in 2015 (not a 1980s fixer-upper), this 2,048 sq. ft. home features soaring cathedral ceilings, zero carpet (tile/laminate throughout), and a wide-open floor plan designed for entertaining. The kitchen overlooks the family room, making it the perfect hub. BONUS FEATURES: "¢ Private Boat Ramp: Launch your skiff or jet skis directly from your backyard into the private pond/lake access. "¢ Utilities: Private well and septic = NO water/sewer bills. "¢ Irrigation: Fed directly from the lake to keep your green space lush for free. Located in the quiet privacy of Umatilla but just minutes from town. If you have outgrown your HOA, your driveway, and your storage unit"”40610 Babb Rd is the answer. Schedule your private tour today. Room to run your business from home Space for equipment, RVs, animals, expansion No HOA restrictions limiting your lifestyle Create your own private estate or family compound
| DAYS ON MARKET | 429 | LAST UPDATED | 3/13/2026 |
|---|---|---|---|
| TRACT | NONE | YEAR BUILT | 2015 |
| COMMUNITY | 32784 - Umatilla / Dona Vista | GARAGE SPACES | 4.0 |
| COUNTY | Lake | STATUS | Active |
| PROPERTY TYPE(S) | Single Family |
| PRICE HISTORY | |
| Prior to Apr 14, '25 | $975,000 |
|---|---|
| Apr 14, '25 - Jul 18, '25 | $925,000 |
| Jul 18, '25 - Mar 13, '26 | $850,000 |
| Mar 13, '26 - Today | $749,999 |
| ADDITIONAL DETAILS | |
| AIR | Central Air |
|---|---|
| AIR CONDITIONING | Yes |
| APPLIANCES | Dishwasher, Range, Water Softener |
| AREA | 32784 - Umatilla / Dona Vista |
| CONSTRUCTION | Stucco |
| EXTERIOR | Balcony |
| GARAGE | Yes |
| HEAT | Central |
| INTERIOR | Cathedral Ceiling(s), High Ceilings, Vaulted Ceiling(s) |
| LOT | 8.51 acre(s) |
| PARKING | Attached |
| SEWER | Septic Tank |
| STORIES | 1 |
| SUBDIVISION | NONE |
| TAXES | 2643.57 |
| UTILITIES | Cable Available, Cable Connected, Electricity Connected, Sewer Connected |
| VIEW | Yes |
| VIEW DESCRIPTION | Lake, Pond, Water |
| WATER | Private, Well |
| WATERFRONT DESCRIPTION | Lake Privileges |
MORTGAGE CALCULATOR
TOTAL MONTHLY PAYMENT
0
P
I
*Estimate only
| SATELLITE VIEW |
| / | |
We respect your online privacy and will never spam you. By submitting this form with your telephone number
you are consenting for Greg
Lord to contact you even if your name is on a Federal or State
"Do not call List".
Listing provided by Jennifer Jordan, ENGINE REALTY INC, 407-801-8888
The information contained herein has been provided by My Florida Regional MLS DBA Stellar MLS. IDX information is provided exclusively for consumers' personal, non-commercial use, that it may not be used for any purpose other than to identify prospective properties consumers may be interested in purchasing, and that the data is deemed reliable but is not guaranteed accurate by the MLS. Listings last updated 5/13/26 2:13 AM PDT.
This IDX solution is (c) Diverse Solutions 2026.