|
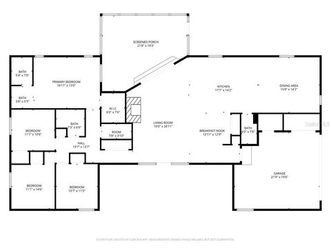
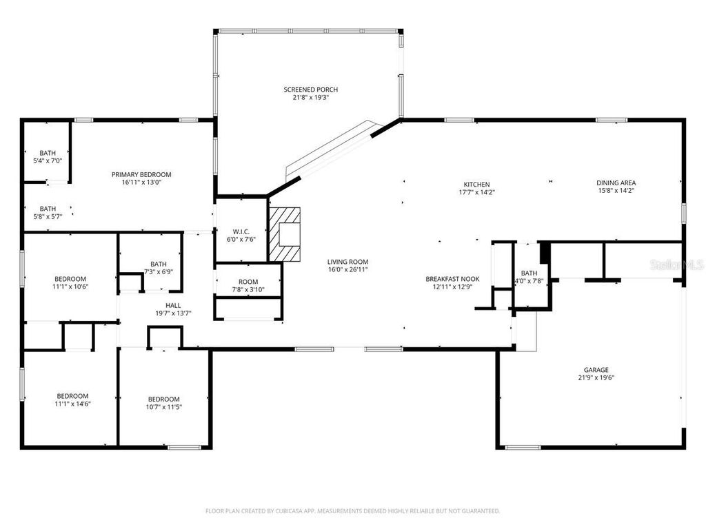
Located in the heart of Chiefland Florida you will find this Concrete Block , Antique Brick home (some bricks actually used from torn down chimneys generations ago) massive 4 bedrooms, 2.5 bathrooms , 2 car garage , huge screened porch on 5 gorgeous acres that is freshly fenced and cross fenced WITH a massive barn, cow pins , storage buildings and a feed room. If having a farm, cutting hay, planting a garden and more is a dream you've been having, then look no further .This home has been loved for many generations and it is now time to share the craftsmanship and love to a new family. Located just a few miles to town this home offers privacy and seclusion yet convenience to our local Golf and County Club, Manatee Springs State Park and The Great Suwannee River. As you enter the private paved driveway you are welcomed to the custom 2 car garage as well as detached carport, as you enter the home you will see a bright open floor plan with a gorgeous view of the pasture out back on patio. In the living room there is a gorgeous wood burning fireplace with real stone accents. A dinette sitting area, a nice open kitchen loaded with real wood custom cabinetry with a gorgeous stone wall, immaculate appliances some of which are kitchen aide. A large formal dining room with nostalgic wall paper perfect for entertaining or family holiday gatherings, with a half bathroom perfect for all guest. Down the hallway you will see the oversized master bedroom with master bathroom with walk in shower. Each guest bedroom offers ample space and guest bathroom has a combo tub /shower. You will not hear ANY outside noise as this home is SOLID with dual pane energy efficient windows and added 8 inch insulation ensuring very low energy bills. Clothing closest in the home are cedar lined hand cut by the owners grandfather many years ago. Through the sliding glass doors you can enjoy the oversized screened porch with nostalgic terrazzo flooring and the gorgeous view of the pastures out back. This property has multiple septic tanks, multiple wells (perfect for gardening or animals) , multiple power poles (with RV set up) perfect for that added family member. The massive barn is perfect for your tractor , UTV's, boat and more with a 200 amp box you can do pretty much anything in this barn. On the right side you have several stalls leading to the cow pin and on the left you have bays for storage. Also 2 additional concrete block buildings perfect for storage, workshop or keep the one room as a feed room. What was one a family homestead is now sectioned and ready for its new family to create many new memories on the farm. Enjoy the slow pace ,peace and quiet of the countryside of Chiefland Fla. Accepting ALL loans, call today for your personal tour!
| DAYS ON MARKET | 213 | LAST UPDATED | 1/11/2026 |
|---|---|---|---|
| TRACT | NOT IN A SUBDIVISION | YEAR BUILT | 1974 |
| COMMUNITY | 32626 - Chiefland | GARAGE SPACES | 2.0 |
| COUNTY | Levy | STATUS | Active |
| PROPERTY TYPE(S) | Single Family |
| Elementary School | Chiefland Elementary School-LV |
|---|---|
| Jr. High School | Chiefland Middle High School-LV |
| High School | Chiefland Middle High School-LV |
| PRICE HISTORY | |
| Prior to Jan 11, '26 | $479,900 |
|---|---|
| Jan 11, '26 - Today | $469,900 |
| ADDITIONAL DETAILS | |
| AIR | Central Air |
|---|---|
| AIR CONDITIONING | Yes |
| APPLIANCES | Dishwasher, Range, Refrigerator |
| AREA | 32626 - Chiefland |
| CONSTRUCTION | Block, Brick |
| EXTERIOR | Lighting, Rain Gutters, Storage |
| FIREPLACE | Yes |
| GARAGE | Yes |
| HEAT | Central, Electric |
| INTERIOR | Eat-in Kitchen, Open Floorplan, Walk-In Closet(s) |
| LOT | 5.05 acre(s) |
| PARKING | Attached |
| SEWER | Septic Tank |
| STORIES | 1 |
| SUBDIVISION | NOT IN A SUBDIVISION |
| TAXES | 3040 |
| UTILITIES | Electricity Connected |
| WATER | Private, Well |
MORTGAGE CALCULATOR
TOTAL MONTHLY PAYMENT
0
P
I
*Estimate only
| SATELLITE VIEW |
| / | |
We respect your online privacy and will never spam you. By submitting this form with your telephone number
you are consenting for Greg
Lord to contact you even if your name is on a Federal or State
"Do not call List".
Listing provided by Burgandy Arrington, LPT REALTY, LLC, 352-463-0054
The information contained herein has been provided by My Florida Regional MLS DBA Stellar MLS. IDX information is provided exclusively for consumers' personal, non-commercial use, that it may not be used for any purpose other than to identify prospective properties consumers may be interested in purchasing, and that the data is deemed reliable but is not guaranteed accurate by the MLS. Listings last updated 5/13/26 2:15 AM PDT.
This IDX solution is (c) Diverse Solutions 2026.