|
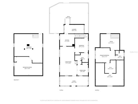
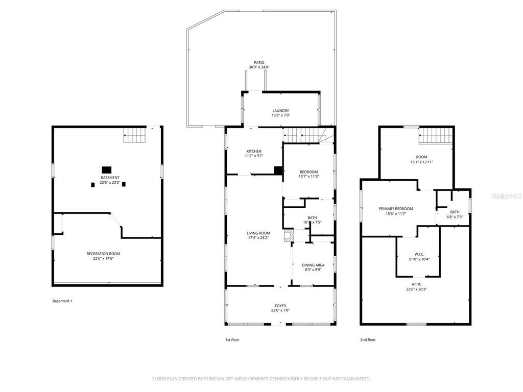
One or more photo(s) has been virtually staged. Celebrating its 100th birthday, this well-maintained home is full of character and sits on 2.36 acres in Sorrento with no HOA. Gorgeous hardwood floors add warmth and timeless appeal to the main living areas, while the 2-bedroom, 2-bath home features a kitchen with granite countertops, a spacious primary suite with a large walk-in closet, an additional room off the primary bedroom ideal for an office or flex space and a gas fireplace in the living room. A rare feature for a home of this era, the property includes a finished 816-square-foot basement with interior access from the kitchen and a private exterior entrance, previously used as a workshop and offering an enclosed room perfect for a man cave, office or hobby space. The property offers exceptional versatility with multiple outbuildings, including a detached two-story building with a one-car garage or workshop below and potential in-law or studio space upstairs, a covered pole barn suitable for boats, vehicles or equipment, and a detached four-car garage with electricity and water, featuring two roll-up style doors (one electric and one manual), ideal for storage, a workshop, or hobby use. Outdoor living is enhanced by an open back patio featuring a unique gas built-in firepit, along with a fenced backyard suitable for dogs, an enclosed fenced storage area, a pump house for the well and convenient access to the 429 and 453 toll roads for easy travel throughout Central Florida.
| DAYS ON MARKET | 76 | LAST UPDATED | 2/11/2026 |
|---|---|---|---|
| TRACT | ACREAGE & UNREC | YEAR BUILT | 1926 |
| COMMUNITY | 32776 - Sorrento / Mount Plymouth | GARAGE SPACES | 4.0 |
| COUNTY | Lake | STATUS | Active |
| PROPERTY TYPE(S) | Single Family |
| Elementary School | Sorrento Elementary |
|---|---|
| Jr. High School | Mount Dora Middle |
| High School | Mount Dora High |
| PRICE HISTORY | |
| Prior to Feb 11, '26 | $499,900 |
|---|---|
| Feb 11, '26 - Today | $489,900 |
| ADDITIONAL DETAILS | |
| AIR | Central Air |
|---|---|
| AIR CONDITIONING | Yes |
| APPLIANCES | Dryer, Gas Water Heater, Range Hood, Refrigerator, Washer |
| AREA | 32776 - Sorrento / Mount Plymouth |
| BASEMENT | Daylight, Exterior Entry, Finished, Interior Entry, Yes |
| CONSTRUCTION | Block |
| EXTERIOR | Dog Run, Fire Pit, Storage |
| FIREPLACE | Yes |
| GARAGE | Yes |
| HEAT | Central, Electric |
| INTERIOR | Walk-In Closet(s) |
| LOT | 2.36 acre(s) |
| LOT DESCRIPTION | Corner Lot, Landscaped, Paved |
| LOT DIMENSIONS | 330 x 311.5 |
| PARKING | Boat, Covered, Driveway, Garage Door Opener, Workshop in Garage |
| SEWER | Septic Tank |
| STORIES | 2 |
| SUBDIVISION | ACREAGE & UNREC |
| TAXES | 975 |
| UTILITIES | Electricity Connected, Water Connected |
| VIEW | Yes |
| VIEW DESCRIPTION | Trees/Woods |
| WATER | Private, Well |
MORTGAGE CALCULATOR
TOTAL MONTHLY PAYMENT
0
P
I
*Estimate only
| SATELLITE VIEW |
| / | |
We respect your online privacy and will never spam you. By submitting this form with your telephone number
you are consenting for Greg
Lord to contact you even if your name is on a Federal or State
"Do not call List".
Listing provided by Dana Bruns, HANSON REAL ESTATE GROUP, INC., 352-383-3772
The information contained herein has been provided by My Florida Regional MLS DBA Stellar MLS. IDX information is provided exclusively for consumers' personal, non-commercial use, that it may not be used for any purpose other than to identify prospective properties consumers may be interested in purchasing, and that the data is deemed reliable but is not guaranteed accurate by the MLS. Listings last updated 4/3/26 1:57 AM PDT.
This IDX solution is (c) Diverse Solutions 2026.