|
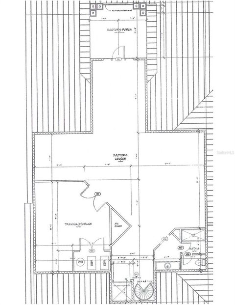
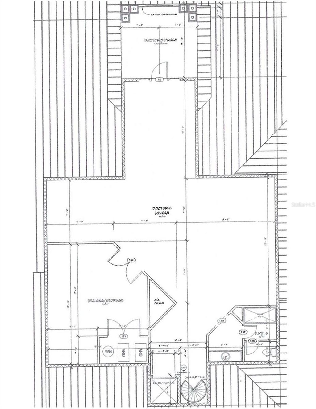
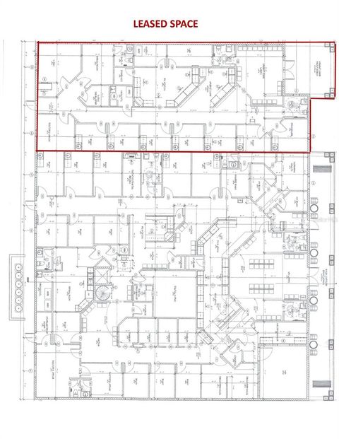
RARE OPPORTUNITY to purchase and have Fee Simple Title to a medical office building in The Villages. Sumter Landing Professional Plaza is located directly to the south of Lake Sumter Landing, the 2nd Town Square developed by The Villages. Convenient location in the heart of The Villages with golf cart access and plenty of parking. 1) The building totals 11,798 SF (heated/cooled) plus 1,105 SF of covered porches. The Owners currently occupy 8,838 SF (heated/cooled) or 75% of the building and will close their respective medical practices upon a sale. The Owners share a common lobby (with 2 handicap restrooms) along with an X-ray room and MRI room. The space currently occupied by a Chiropractic practice has a reception desk, private waiting area, 6 semi-private therapy rooms, 4 private exam rooms, and 2 doctors offices with a shared bathroom between the two offices. The space occupied by an Orthopedic practice has a reception desk, private waiting area, 11 exam rooms, RN station, 3 bathrooms (1 is handicap), break room, and 3 small doctors offices. The 2nd floor space, occupied by the Owners, is 1,838 SF (heated/cooled) with an open work area, private office, bathroom, and large storage area, plus a 195 SF covered porch. It is accessible by stairs or elevator. 2) The other unit totaling 2,960 SF (heated/cooled) is occupied by an urgent care practice with a 5 year lease ending 10/31/2029. The lease started 11/1/24 at $36/SF (2% annual escalators) and tenant pays 30% of the CAM expense to The Villages. This space has a private lobby, reception desk, 3 bathrooms (2 are handicap), procedure room, 6 private exam rooms, RN station, lab, pharmacy, break room, X-ray room and a doctors office. See floor plan in pictures.
| DAYS ON MARKET | 169 | LAST UPDATED | 4/30/2026 |
|---|---|---|---|
| YEAR BUILT | 2007 | COMMUNITY | 32162 - Lady Lake/The Villages |
| COUNTY | Sumter | STATUS | Active |
| PROPERTY TYPE(S) | Commercial |
| PRICE HISTORY | |
| Prior to Apr 30, '26 | $6,000,000 |
|---|---|
| Apr 30, '26 - Today | $5,300,000 |
| ADDITIONAL DETAILS | |
| AIR | Central Air |
|---|---|
| AIR CONDITIONING | Yes |
| AREA | 32162 - Lady Lake/The Villages |
| CONSTRUCTION | HardiPlank Type |
| HEAT | Central |
| LOT | 0.34 acre(s) |
| PARKING | Common, Lighted |
| SEWER | Public Sewer |
| STORIES | 2 |
| TAXES | 25789 |
| UTILITIES | Underground Utilities |
| WATER | Public |
MORTGAGE CALCULATOR
TOTAL MONTHLY PAYMENT
0
P
I
*Estimate only
| SATELLITE VIEW |
| / | |
We respect your online privacy and will never spam you. By submitting this form with your telephone number
you are consenting for Greg
Lord to contact you even if your name is on a Federal or State
"Do not call List".
Listing provided by Michael Pederson, GRIZZARD COMMERCIAL REALESTATE, 352-787-6966
The information contained herein has been provided by My Florida Regional MLS DBA Stellar MLS. IDX information is provided exclusively for consumers' personal, non-commercial use, that it may not be used for any purpose other than to identify prospective properties consumers may be interested in purchasing, and that the data is deemed reliable but is not guaranteed accurate by the MLS. Listings last updated 5/12/26 2:03 PM PDT.
This IDX solution is (c) Diverse Solutions 2026.